すべて国内工場で製造し、厳格な品質基準をクリアした製品のみを提供!
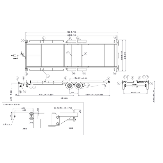
当社で取り扱う「日本製トレーラーハウス専用 24ftシャーシ」 をご紹介いたします。 長年のトレーラー製造で培った技術を活かし、フレームには 国内JIS規格のスチールを使用。高い耐久性と安定性を持ち、 長期間の使用にも耐えられる設計。 さらに、一般的なシャーシよりも約150mm高い750mmの設計により、 トレーラーハウスの内部空間を確保しやすく、快適な住環境を 提供しやすくなります。 【特長】 ■強度と耐久性を兼ね備えた設計 ■大容量の積載性能で自由なレイアウトが可能 ■販売時の不安を解消する導入サポート ■車検対応済みでスムーズな販売が可能 ■販売会社のニーズに応じたカスタマイズ対応 ※詳しくは関連リンクをご覧いただくか、お気軽にお問い合わせください。
この製品へのお問い合わせ
基本情報
【仕様(一部)】 ■サイズ:全長8280mm 全幅2470mm 架台高740 ■構造:鉄骨造 ■ヒッチボール:2インチ ■電源:アメリカン7ピン ■灯火:12v ※詳しくは関連リンクをご覧いただくか、お気軽にお問い合わせください。
価格帯
納期
用途/実績例
【使用用途例】 ■コンテナホテル、オフィス、グランピング ※詳しくは関連リンクをご覧いただくか、お気軽にお問い合わせください。
カタログ(1)
カタログをまとめてダウンロード企業情報
コンテナワークスは、コンテナの製造から設計・施工までをワンストップで提供する、コンテナハウス専門企業です。企画段階から施工・設置まで一貫して対応する体制により、品質・工程・コストを安定的に管理しています。 建築用途においては、建築基準法を満たしたJIS規格の建築用コンテナのみを使用。輸送用の中古コンテナや改造コンテナは一切用いず、建築物としての安全性・耐久性・品質を重視したものづくりを行っています。一方で、資源の有効活用や空間活用の可能性を広げる選択肢として、ISO規格の輸送用コンテナも製品ラインナップに展開。国産のトレーラーシャーシと組み合わせることで、可搬性を生かした施設や事業用途として、さまざまな企業様に導入いただいています。 事業エリアは全国対応。各地域の施工会社とパートナーシップを構築し、地域特性や用途に応じた柔軟な施工体制で、法人・事業者様の多様なニーズにお応えします。










