橋梁点検作業の効率化と安全性を両立
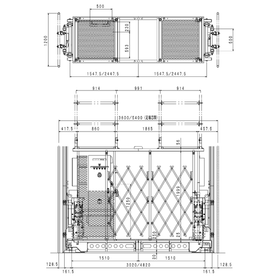
橋梁業界における点検作業では、高所での作業効率と安全性の確保が重要です。橋梁の老朽化が進む中、迅速かつ確実な点検が求められています。PowerCARGOは、単相200V電源で駆動し、仮設足場に簡単に設置できるため、点検作業のアクセスを容易にします。インバータ制御によるスムーズな昇降と水平アシスト機能により、安全な作業環境を提供します。 【活用シーン】 ・橋梁の点検作業 ・橋梁の補修作業 ・高所作業が必要な現場 【導入の効果】 ・作業時間の短縮 ・作業員の安全確保 ・設置場所の柔軟性向上
この製品へのお問い合わせ
関連動画
基本情報
【特長】 ・単相200V電源で運転可能 ・インバータ制御でスムーズな昇降 ・ロックピンの採用でマストの組立が容易 ・重機なしで設置でき、騒音にも配慮して使用可能 【当社の強み】 ・安心安全を第一に考え、お客様の期待を超えるサービス提供とものづくりを行います。 ・環境への配慮と社会への感謝を忘れず、人々のより良い暮らしづくりを支えます。 ・人の成長と多様性を尊重し、挑戦を楽しめる魅力的な人づくりを行います。
価格帯
納期
用途/実績例
【用途】 ■ロングスパン工事用 ※詳しくはPDF資料をご覧いただくか、お気軽にお問い合わせ下さい。
カタログ(1)
カタログをまとめてダウンロード企業情報
【経営姿勢】 ●安心安全を第一に考え、お客様の期待を超えるサービス提供とものづくりを行います。 ●環境への配慮と社会への感謝を忘れず、人々のより良い暮らしづくりを支えます。 ●人の成長と多様性を尊重し、挑戦を楽しめる魅力的な人づくりを行います。





